物件情報

前橋市 下石倉町 貸家(戸建) 賃料128,000円(税込み) 貸主

賃貸物件前橋市下石倉町

前橋市下石倉町で築浅賃貸戸建て住宅の入居募集を致します!
 貸主につき仲介手数料は不要です!!

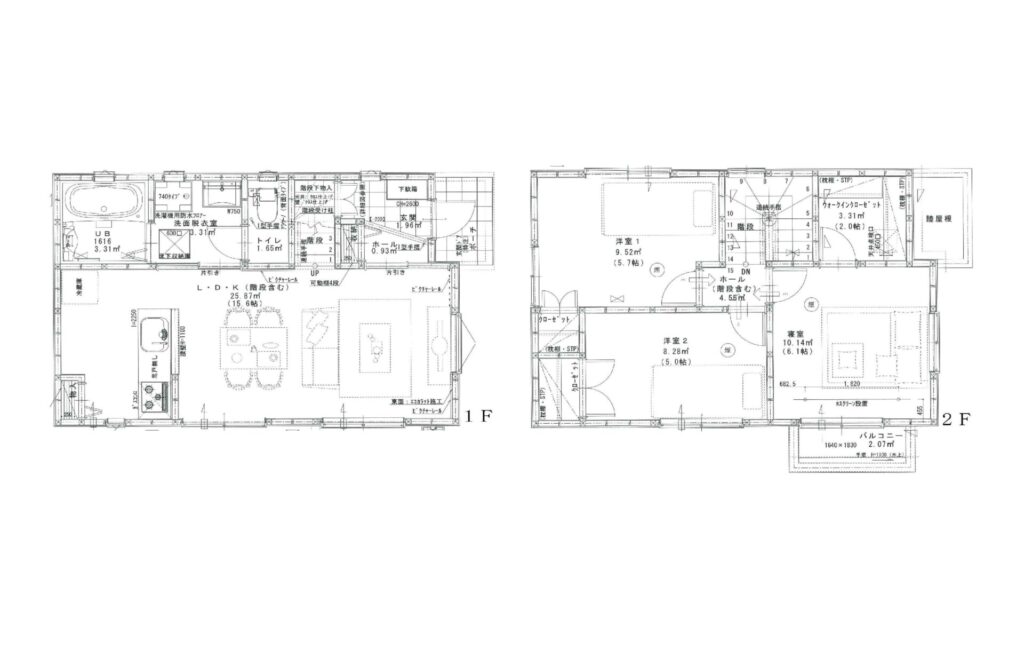
□建物面積 約22坪(75.76㎡) □駐車スペース3台
□間取り 3LDK(LDK15.6帖 洋6.1・5.7・5.0帖)

■全室フルハイドア(一部ペットドア設置)
■ペット対応フローリング
■1F防犯ガラス、玄関ドア2ロック防犯、LOW-E複層ガラス
■人感センサー付きポーチライト
■リビングメイン壁一面エコカラット貼り
■オールLED(LDK調光機能付き)
■室内物干し、ウォークインクローゼット、シューズクローク
■システムキッチン(人造大理石カウンター、浄水機能付き水栓金具)
■浴室設備(暖房換気乾燥機、有機ガラス系浴槽、追い炊き給湯)
■トイレ設備
(全自動お掃除トイレ、ウォシュレット、節水スパイラル水流)
■洗面化粧台
(ヒーターレスくもりシャットミラー、3面境、3面境裏収納)
■モニター付インターフォン
■EVコンセント(電気自動車用充電)
■住宅用火災警報器 
■パナソニックテクノストラクチャー工法(耐震等級3相当)

JR上越線 新前橋駅 約1.0㎞ JR両毛線 前橋駅 約1.9km
フォレストモール新前橋 約1.2㎞ 食彩館マルシェ 約1.2㎞
ファミリーマート 約100m セブンイレブン 約200m
群馬中央病院 約1.3㎞ 群馬済生会前橋病院 約1.8㎞ わかば病院 約300m 

前橋駅・新前橋駅周辺に拠点を置く大手企業の管理職の転勤者や勤務医の転勤者等で、
企業や院などから住宅補助手当の受給ができる方におすすめです!

物件番号 2230363 情報登録日 2026/04/13 最終更新日
種別 貸家(戸建) 価格 128,000円
所在地 前橋市下石倉町 土地面積
地目 地勢 平坦
都市計画 市街化区域 用途地域 第二種中高層住居専用地域
建蔽率 容積率
学校区 桃ノ井小学校/第一中学校 最寄駅 JR上越線 新前橋駅 約1.0㎞
接道状況 二方 東(6.0m) 北(6.0m) 道路後退
間取り 3LDK 建物面積 75.76㎡(22.91坪)
構造 木造ガルバリウム鋼板葺2階建 築年月 平成30年1月31日
権利関係 向き
現況 引渡時期 令和8年5月下旬(予定)
ライフライン 電気:東京電力 水道:公営 排水:公共下水 ガス:プロパンガス
設備
備考(1) 権利金/1ヶ月 敷金/2ヶ月 共益費/込み 契約期間/2年間  仲介手数料/1ヶ月
備考(2)
取引形態 貸主 担当者名 羽鳥 物件資料 ダウンロード

アイアールはIImpression(感動)
RReliable(信頼)の頭文字です

"感動を提供し信頼を頂く"愛ある仕事を皆様に"をモットーに、群馬県を中心に活動しています。
不動産に関する疑問やお悩み、ご相談等あれば、何でもお気軽にご連絡ください。
弊社のスタッフが豊富な経験と実績を活かし、最良のアドバイスとご提案をさせていだきます。

LINE QRコード
Instagram QRコード
Twitter QRコード

© 2021 IR.

PAGE TOP